Działka na sprzedaż - Osiek

25 Luty 2026
120 000 zł
132,01 zł/m²
Opis nieruchomości
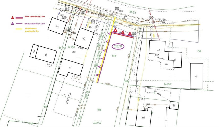
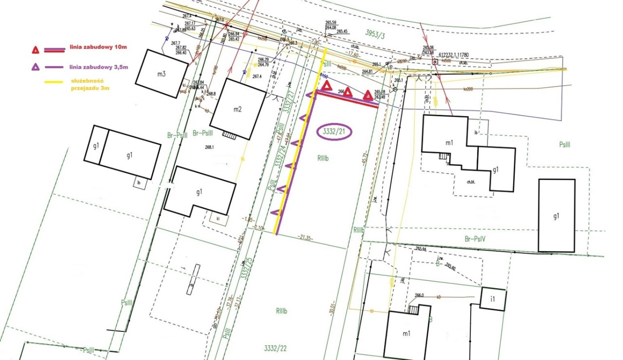
Oferujemy na sprzedaż nieruchomość gruntową o powierzchni 909 m2 położoną w Osieku.
Działka położona w atrakcyjnej lokalizacji tylko 1km od kompleksu Molo Resort. 
Nieruchomość objęta jest MPZP Gminy Osiek.Znajduje się w jednostce oznaczonej
MM94
- zabudowa mieszkaniowa jednorodzinna i zagrodowa. 
Media w pobliżu: woda, energia elektryczna, kanalizacja sanitarna, gaz. 



W terenach MM94- zabudowa mieszkaniowa jednorodzinna i zagrodowa ustala się:
1) zachowanie istniejących budynków z możliwością wykonywania robót budowlanych oraz zmiany sposobu
  użytkowania zgodnym z przeznaczeniem podstawowym;
2) możliwość zmiany sposobu użytkowania obiektów w części lub w całości na usługi nieuciążliwe, na
  działkach mających zapewnioną właściwą obsługę komunikacyjną, w tym miejsca parkingowe;
3)lokalizację budynków mieszkalnych jednorodzinnych wolnostojących lub bliźniaczych oraz
  towarzyszących budynków gospodarczych i garażowych;
4)możliwość lokalizacji zabudowy zagrodowej, w przypadku, gdy działka, na której planuje się tą zabudowę
   ma powierzchnię minimum 1500 m2;
5) możliwość lokalizacji obiektów usług nieuciążliwych - wbudowanych lub wolnostojących na działkach
    mających zapewnioną właściwą obsługę komunikacyjną, w tym miejsca parkingowe;
6) zachowanie i budowę obiektów i sieci infrastruktury technicznej;
7) zachowanie oraz budowę urządzeń komunikacji (dojścia, dojazdy, miejsca parkingowe);
8) realizację zieleni urządzonej,

Zapraszamy do zapoznania się ze szczegółami oferty!

W przypadku zakupu do ceny nieruchomości należy doliczyć koszty notarialne i wynagrodzenie biura. 
Osiek- województwo małopolskie, powiat Oświęcim!
Szczegóły oferty
Symbol oferty GS-2356
Powierzchnia 909,00 m²
Przeznaczenie działki mieszkaniowa jednorodzinna
Stan prawny własność
Zagosp. działki niezagospodarowana
Ukształtowanie działki pochyła
Kształt działki prostokąt
Ogrodzenie działki brak
Gaz w ulicy
Woda możliwość podłączenia
Dojazd droga polna
Prąd możliwość podłączenia
Kanalizacja możliwość podłączenia
Nota prawna

Opis oferty zawarty na stronie internetowej sporządzany jest na podstawie oględzin nieruchomości oraz informacji uzyskanych od właściciela, może podlegać aktualizacji i nie stanowi oferty określonej w art. 66 i następnych K.C.

OFERUJEMY BEZPŁATNĄ POMOC W UZYSKANIU KREDYTU HIPOTECZNEGO NA ZAKUP TEJ NIERUCHOMOŚCI.

Ewelina Halska
POŚREDNIK NIERUCHOMOŚCI LIC. NR 10891
Oblicz ratę kredytu
120 000 zł
132,01 zł/m²
Cena za m² 132,01 zł/m²
Powierzchnia 909,00 m²
Podobne oferty
działka na sprzedaż - Osiek
120 000 zł
Działka na sprzedaż
Kalkulator kredytowy
Kwota kredytu
0 PLN
Miesięczna rata
0 PLN

Podobne oferty

Na rynku nieruchomości działamy kompleksowo od 2004r.
882,00 m2   136,05 zł /m2
GS-2357
Osiek
120 000 zł