Nowa oferta

Lokal na wynajem - Oświęcim, Stare Miasto

17 Luty 2026
7 000 zł
59,93 zł/m²
Opis nieruchomości

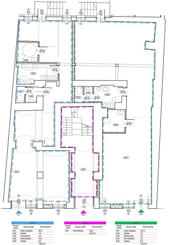
OŚWIĘCIM CENTRUM | DO WYNAJĘCIA DUŻY LOKAL O POW. 116,8 m2

Lokal położony jest na parterze w kamienicy przy ulicy Mayzla 1 w sąsiedztwie Rynku Głównego w Oświęcimiu. Kamienica po kapitalnym remoncie, na tym etapie możliwość indywidualnej aranżacji wnętrza pod zapotrzebowanie przyszłego Najemcy. 

Na załączonym rzucie - lokal nr 1 - kolor niebieski

Lokal jest świetnie zlokalizowany w zabytkowej części miasta. W najbliższym sąsiedztwie znajduje się Zamek, Centrum Żydowskie w Oświęcimiu i Synagoga ( więcej informacji: http://ajcf.pl/muzeum/ ), Kościół Parafialny. Od strony ulicy Berka Joselewicza znajduje się nowo wybudowany hotel Hampton by Hilton.
Ulica Mayzla jest zaadaptowana na deptak z ogródkami gastronomicznymi.



Charakterystyka lokalu:

  • witryny i wejście od ulicy Mayzla, wejście od ulicy Berka Joselewicza;
  • powierzchnia użytkowa  116,8 m2;
  • możliwość indywidualnej adaptacji lokalu;
  • nowe instalacje: elektryczna, wodno - kanalizacyjna, centralne ogrzewanie miejskie;
  • witryny i drzwi wejściowe klasy P4;
  • prywatna część parkingowa od ulicy Berka Joselewicza oraz duża ilość miejsc parkingowych w strefie Rynku Głównego;


Koszty najmu:

Do czynszu najmu należy doliczyć 23% VAT oraz koszty centralnego ogrzewania, energii elektrycznej, wody - wszystkie media opomiarowane oraz wywozu nieczystości (indywidualna umowa).
Przy podpisania umowy najmu pobierana będzie kaucja zabezpieczająca w wysokości jednomiesięcznego czynszu najmu.


Do podanej ceny należy doliczyć koszt usługi pośrednictwa

ZAPRASZAMY DO ZAPOZNANIA SIĘ ZE SZCZEGÓŁAMI OFERTY
Szczegóły oferty
Symbol oferty LW-2132
Powierzchnia 116,80 m²
Powierzchnia użytkowa 116,80 m²
Rodzaj budynku Obiekt handlowo-usługowo-biurowy
Standard
Opłaty wg liczników woda, CO, prąd
Liczba pięter w budynku 2
Stan lokalu Do wykończenia
Stan prawny Własność
Typ kaucji jednomiesięczna
Okna nowe drewniane
Instalacje nowe
Rok budowy 2023
Rodzaj lokalu jednopoziomowy
Przeznaczenie lokalu usługowy, handlowy, handlowo-usługowy
Gaz tak - miejski
Woda tak - miejska
Dojazd asfalt
Otoczenie zabudowa wielorodzinna
Ogrzewanie miejskie
Usytuowanie dwustronne
Możliwość parkowania tak
Własny parking tak
Położenie lokalu w głównym ciągu pieszych
Witryna wystawowa od ulicy
Wejście od ulicy
vir_oferta_klucze tak
Nota prawna

Opis oferty zawarty na stronie internetowej sporządzany jest na podstawie oględzin nieruchomości oraz informacji uzyskanych od właściciela, może podlegać aktualizacji i nie stanowi oferty określonej w art. 66 i następnych K.C.

OFERUJEMY BEZPŁATNĄ POMOC W UZYSKANIU KREDYTU HIPOTECZNEGO NA ZAKUP TEJ NIERUCHOMOŚCI.

Ewelina Halska
POŚREDNIK NIERUCHOMOŚCI LIC. NR 10891
Cena za m² 59,93 zł/m²
Powierzchnia 116,80 m²
Piętro Parter
Podobne oferty
lokal na wynajem - Oświęcim, Stare Miasto, Mayzla
7 000 zł
Lokal na wynajem

Podobne oferty

Na rynku nieruchomości działamy kompleksowo od 2004r.
116,80 m2   59,93 zł /m2
LW-2104
Oświęcim, Stare Miasto, Mayzla
7 000 zł