Mieszkanie na sprzedaż - Brzeszcze

13 Listopad 2025
280 000 zł
4 000,00 zł/m²
Opis nieruchomości

Jako alternatywę  dla mieszkania oferujemy do sprzedaży mały dom
z własnym ogródkiem położony w Brzeszczach.
Jest to budynek mieszkalny w zabudowie bliźniaczej o pow.ok.70m2,
położony na działce o pow.294m2
Budynek murowany, otynkowany, nieocieplony, częściowo podpiwniczony, okna PCV, ogrzewanie gazowe - piec dwufunkcyjny.
W 2018r przeprowadzono remont w wewnątrz budynku.
Dach dwuspadowy, kryty dachówką betonową.
Media: prąd, gaz, woda, szambo.

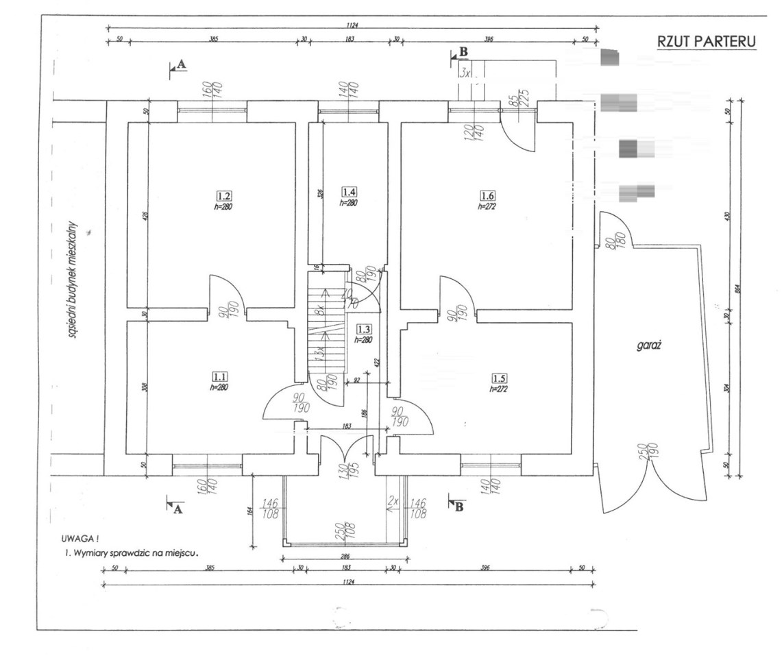
Układ budynku:
-piwnice
-parter: ganek, przedpokój, 3 pokoje, kuchnia, łazienka.
-strych

Okolica cicha, zielona. Blisko dostępna infrastruktura miejska.

Oferta dotyczy tylko sprzedaży domu. Nie ma możliwości zamiany
na inną nieruchomość !!!


Do ceny nieruchomości należy doliczyć koszty notarialne i prowizję biura nieruchomości!


Polecamy!!

Szczegóły oferty
Symbol oferty MS-2330
Powierzchnia 70,00 m²
Powierzchnia użytkowa 68,00 m²
Powierzchnia działki 294 m²
Liczba pokoi 3
Rodzaj domu bliźniak
Rodzaj budynku bliźniak
Technologia budowlana cegła
Standard
Liczba pięter w budynku 1
Wymiary działki 11*18 m
Garaż brak
Stan lokalu Po częściowym remoncie
Stan prawny Wlasnosc
Okna PCV
Instalacje częściowo wymienione
Balkon jest
Liczba balkonów 1
Zagosp. działki zagospodarowana
Ukształtowanie działki płaska
Kształt działki nieregularny
Pokrycie dachu dachówka betonowa
Podpiwniczenie częściowo podpiwniczony
Rok budowy 1914
Gaz jest
Woda jest
Dojazd asfalt
Otoczenie zabudowa jednorodzinna
Ogrzewanie gazowe dla budynku
Odległość do komunikacji publicznej [m] 350 m
Odl. do sklepu [m] 800 m
Odl. do szkoły [m] 230 m
Odl. do przedszkola [m] 1 300 m
Prąd jest
Kanalizacja szambo
Nota prawna

Opis oferty zawarty na stronie internetowej sporządzany jest na podstawie oględzin nieruchomości oraz informacji uzyskanych od właściciela, może podlegać aktualizacji i nie stanowi oferty określonej w art. 66 i następnych K.C.

OFERUJEMY BEZPŁATNĄ POMOC W UZYSKANIU KREDYTU HIPOTECZNEGO NA ZAKUP TEJ NIERUCHOMOŚCI.

Ewelina Halska
POŚREDNIK NIERUCHOMOŚCI LIC. NR 10891
Oblicz ratę kredytu
280 000 zł
4 000,00 zł/m²
Cena za m² 4 000,00 zł/m²
Powierzchnia 70,00 m²
Pokoje 3 pokoje
Piętro Parter
Podobne oferty
mieszkanie na sprzedaż - Brzeszcze, Szymanowskiego
330 000 zł
Mieszkanie na sprzedaż
Kalkulator kredytowy
Kwota kredytu
0 PLN
Miesięczna rata
0 PLN
Pomieszczenia
Powierzchnia pokoi 17,02; 16,40; 12,03 m2
Typ kuchni z zabudową kuchenną
Rodzaj kuchni oddzielna widna
Podłoga kuchni płytki
Typ łazienki razem z wc, z oknem
Liczba łazienek 1
Glazura łazienki nowego typu
Podłoga łazienki płytki
Wyposażenie łazienki kabina prysznicowa, lustro, umywalka, WC
Liczba przedpokoi 1

Podobne oferty

Na rynku nieruchomości działamy kompleksowo od 2004r.
67,00 m2   4 925,37 zł /m2
MS-2076
Brzeszcze, Szymanowskiego
330 000 zł